Pedestal Pumps

Bearing HousingCLICK HERE FOR PERFORMANCE CURVES

Pedestal pumps Models 501 & 502 feature heavy-duty bearing housings with:

Exclusive, stainless steel (316) heavy-duty shafts: 3 & 5HP (1.25” diameter) and 7.5 & 10HP (1.75” diameter). Most other makes in the industry offer smaller-diameter shafts.

Exclusive, oversized, double-row ball bearings on all models. Most other makes offer smaller, single-row bearings.

Greater versatility because the choice of motors is unlimited, and these models can be belt driven.

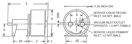
Pedestal Models 501 & 502 (*1):

  HP L O W H D 2E 2F J PUMP
WGT
SHIP
WGT
-40 3 17   11 1/4 11 1/2 5 1/4 8 1/2 7 5 1/2 78 90
-80 5 18 3/4   11 1/4 11 1/2 5 1/4 8 1/2 7 8 1/4 85 95
-120 7.5 20 3/4   11 1/4 11 1/2 5 1/4 8 1/2 7 10 1/4 90 105
-160 10 23 1/4   11 1/4 11 1/2 5 1/4 8 1/2 7 11 3/4 98 115
*1) Dimensions in inches and weight in pounds.
*2) Next size larger motor required with 1750 RPM motors with 1.00SF (Service Factor).

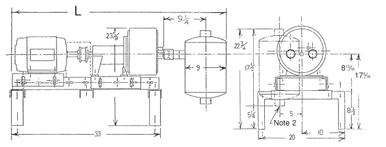
Pedestal Pump Packages w/o Recirculation Tank, Models 501 & 502BLRS, and w/ Recirculation Tank, Models 501 & 502BLRS (*1):

  HP RPM LGTH(L) WDTH(W) HGHT(H)
W/O REC. TNK.
HGHT(H) W/REC.
TNK.(*3)
WGT SHIPWGT ADD FOR
REC. TNK
-40 3 1750 48 20 23 5/8 39 5/8 235 285 115
-80 5 1750 50 20 23 5/8 39 5/8 255 305 115
-120 7.5 1750 54 20 23 5/8 39 5/8 310 375 115
-160 10 1750 58 20 23 5/8 39 5/8 335 450 115
*1) Dimensions in inches and weight in pounds.
*2) Separator/muffler connections, top and bottom: 2” OD tube.
*3) Recirculation tank overall dimensions: 33(L) x 20(W) x 16(H).